Котел на щепе и опилках 1.25 МВт в Актау

Котел 1.25 МВт на щепе и опилках
Котел на щепе и опилках 1.25 МВт
Чертеж котла на щепе и опилках 1.25 МВт
Котел на щепе и опилках 1.25 МВт чертеж
Котел на щепе с автоматической подачей 1.25 МВт
Котел 1.25 МВт на щепе с автоматической подачей
Котел 1.25 МВт на щепе и опилках автоматический
Автоматический котел 1.25 МВт на щепе и опилках
Котел 1.25 МВт на щепе и опилках отопительный с плунжерной подачей топлива
Отопительный котел 1.25 МВт на щепе и опилках с плунжерной подачей топлива
Котел 1.25 МВт на опилках и щепе твердотопливный
Твердотопливный котел 1.25 МВт на опилках и щепе
Котел на древесной щепе 1.25 МВт
Котел 1.25 МВт на древесной щепе
Живое дно бункер
Бункер Живое дно
Склад механизированный Живое дно
Механизированный склад Живое дно
Котел 1.25 МВт на щепе и опилках
Чертеж котла на щепе и опилках 1.25 МВт
Котел на щепе с автоматической подачей 1.25 МВт
Котел 1.25 МВт на щепе и опилках автоматический
Котел 1.25 МВт на щепе и опилках отопительный с плунжерной подачей топлива
Котел 1.25 МВт на опилках и щепе твердотопливный
Котел на древесной щепе 1.25 МВт
Живое дно бункер
Склад механизированный Живое дно
Цена
16 936 680 ₸
От 16 936 680 ₸ с доставкой до г.
  • Автоматический и ручной режим работы
  • Эффективная работа на щепе, сырых и прессованных опилках, стружке, коре влажностью до 60%, с возможностью сжигания дров в ручном режиме
  • Вихревой режим работы с полным догоранием топлива
  • Автоматизированная регулировка подачи топлива и требуемых параметров теплоносителя
  • Система безопасности от воспламенения топлива

Технические характеристики котла на щепе и опилках 1.25 МВт

МаркаКотел КВм ДО 1.25 МВт
ВидВодогрейный
Тип отопительного котлаТвердотопливный
БрендHEATEXPERT
ТипКотел КВм ДО
Вид топкиВихревая, Автоматическая
Максимальная тепловая мощность1.25 МВт
Максимальная тепловая мощность1250 кВт
Максимальная тепловая мощность1.07 Гкал
Диапазон регулирования мощности50-100 %
ТопливоТвердое, Щепа, Опилки
Низшая теплота сгорания проектного топлива2440 кКал/кг
Влажность топлива50 %
КПД котла на ОПИЛКАХ, не менее80 %
Расход ОПИЛОК среднечасовой за отопительный сезон318 кг/ч
Расход ОПИЛОК при максимальной нагрузке котла556 кг/ч
Расход условного топлива194 кг/ч
Минимальная температура воды на входе в котел55 °С
Максимальная температура воды на выходе из котла115 °С
Давление воды, не более0.3-0.6 (3-6) МПа (кгс/см²)
Номинальный расход теплоносителя42 м³/ч
Расход теплоносителя через котел min-max33-55 м³/ч
Гидравлическое сопротивление при номинальном расходене более 0.07 (0.7) МПа (кгс/см²)
Аэродинамическое сопротивление80 (8) Па (мм. вод. ст.)
Разряжение в топочной камере20-40 (2-4) Па (мм. вод. ст.)
Объем уходящих газов6875 м³/ч
Температура уходящих газов220 °С
ТягаУравновешенная
Водяной объем котла900 л
Объем топочной камеры4.57 м³
Размер топочной камеры, длина*ширина*высота1705х1300х2060 мм
Присоединительные размеры по водяному тракту100 Ду
Присоединительные размеры газохода уходящих газов, ширина*высота / сечение600х300 / 0.18 мм/м²
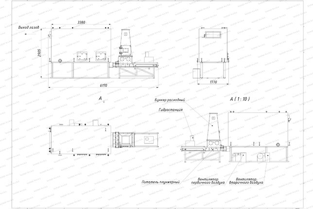
Габаритные размеры блока, длина*ширина*высота3380х1770х2905 мм
Габаритные размеры установки, длина*ширина*высота6170х1770х2905
Масса3200 кг
Конструкция котлаВодотрубная
Количество контуровОдноконтурный
РазмещениеНапольный
Тип камеры сгоранияОткрытый
УправлениеЭлектронное
Принцип работы твердотопливного котлаКлассический
ЭнергонезависимыйНет
Тип питанияТрехфазное
Встроенный циркуляционный насосНет
Встроенный расширительный бакНет
Отапливаемая площадьот 10400 до 13600 м²
Отапливаемый объемот 31200 до 40800 м³
ЭнергоэффективностьВысокая

Котел на щепе и опилках 1.25 МВт автоматический в Актау

Промышленный твердотопливный котел на щепе и опилках 1.25 МВт с автоматической подачей наиболее востребован на предприятиях деревообработки для сушки древесины, лесопилках, пилорамах, лесхозах, мебельных и погонажных производствах для технологических нужд, а также для отопления и горячего водоснабжения. Отопление опилками и щепой, остающимися после изготовления ваших изделий, принесет значительную экономию при теплоснабжении ваших предприятий. Автономная работа котла 1,25 МВт на щепе и опилке не требует больших усилий со стороны кочегара, все процессы настраиваются и поддерживаются при помощи автоматики.

Теплогенератор работает на сырых и прессованных опилках, щепе, стружке, в ручном режиме возможна загрузка дров, поленьев, крупнокусковых отходов. Агрегат нагревает воду до 95 – 115 градусов с давлением теплоносителя 0,3 – 0,6 МПа.

Твердотопливный котел 1.25 МВт на опилках и щепе устройство

Отопительный котел 1,25 МВт на опиле и древесной щепе - водотрубный, гладкотрубный, газоплотный, напольный изготавливается в горизонтальном расположении с плунжерной подачей, вихревой топкой и бункером.

Агрегаты работают в автоматическом режиме. Автоматика осуществляет запуск, остановку, регулировку давления и температуры теплоносителя, подачу необходимого количества воздуха, пожаротушение в случае воспламенения топлива в топливопроводе. Для необходимости сжигания крупногаборитных отходов автоматика переключается в ручной режим работы.

Плунжерный питатель присоединяется к котельному блоку. При помощи плунжера осуществляется автоматизированная подача топлива в вихревую топку котла. Плунжер захватывает топливо и движением вперед подает их в топку, затем возвращается назад за новой порцией топлива. В зависимости от характеристик топлива настраивается интенсивность работы плунжера. Сушка влажного топлива происходит на огнеупорной плите. Благодаря предварительной подсушке, водонагревательный котел 1 25 МВт на щепе и опилках работает со стабильной температурой, без тепловых скачков.

Котельный блок оснащен дверцей для закладки дров. Сжигание дров производится в ручном режиме. В автономном режиме дрова закладываются в качестве дополнительного топлива. Для лучшего поступления кислорода в слой топлива, дрова укладываются на водоохлаждаемую решетку. Решетка рассчитана на длительный срок службы, поскольку идет ее внутреннее охлаждение водой.

Бункер котла 1,25 МВт на щепе наполняется транспортером топливоподачи. Конструкция бункера исключает опрессовку сырых опилок в следствии их сцепления и облегчает разгрузку.

Пожаробезопасность обеспечивается клапанами системы пожаротушения, прибороми контроля давления в системе пожаротушения и температуры топливопровода.

Вихревая топка

Производственный плунжерный котел 1.25 МВт подходит для сжигания сырых опилок и щепы с влажностью до 60 %. Высокая температура в топке способствует сушке топлива, быстрому загоранию и устойчивому горению.

Вихревой метод горения способствует полному выгоранию топлива мелких и крупных фракций. При попадании в воздушный поток мелкие частицы направляются в центр топки и сгорают во взвешенном состоянии. Крупные фракции постепенно скатываются к центру и более легкие, подсушенные выбрасываются в центр топки. Таким образом, в вихревой топке происходит полное сжигание топлива.

Часть топочной камеры занимает водоохлаждаемая решетка. Дрова – объемное топливо, требующее для лучшего горения достаточное количество кислорода. Поэтому закладку дров лучше делать на водоохлаждаемую решетку. Отверстия, расположенные на решетке полностью обеспечивают кислородом топливный слой.

Комплект поставки

Цена на напольные котлы 1,25 МВт на щепе и опилках включает базовую комплектацию. В состав базовой комплектации входит: вентилятор поддува, плунжерный питатель с бункером, затворы, предохранительные клапаны, вентили, манометры, термометры, трехходовые краны.

Дополнительная комплектация

  • автоматика – обеспечивает управление и безопасность котла;
  • циркуляционный насос - обеспечивает циркуляцию воды в котлоагрегате;
  • подпиточный насос – позволяет пополнять объем теплоносителя в контуре;
  • дымосос – создает разряжение в котле и исключает попадание дыма в помещение;
  • золоуловитель – применяется для улавливания золы из дымовых газов.

Купить котел 1.25 МВт на щепе и опилках

Для того, что бы купить котел 1.25 МВт на щепе и опилке в Актау вы можете сделать заявку по телефону +7-7172-69-59-73, либо оформить заявку онлайн. Менеджеры дадут консультацию по подбору вспомогательного оборудования для выбранных вами моделей и рассчитают стоимость доставки. Транспортирование котлоагрегата и вспомогательного оборудования до объекта осуществляется автомобильным транспортом.

Комплект поставки котла на щепе и опилках 1.25 МВт

Вентилятор
ВР280-26 №2,5 с дв. 1,5 кВт/3000
1 штука
Вентилятор
ВР280-26 №2,5 с дв. 3,0 кВт/3000
1 штука
Нет фото
Плунжерный питатель с бункером
1 штука
Затвор Ду 100
Затвор Ду 100
1 штука
Клапан предохранительный Ду 50
Клапан Ду 50
1 штука
Клапан обратный
Клапан обратный
1 штука
Манометр МП 160
Манометр МП 160
1 штука
Кран трехходовой ДУ 15
Кран Ду 15
1 штука
Термометр ТТЖО
Термометр ТТЖО
1 штука
Оправа термометра ОПТ
Оправа ОПТ
1 штука
Вентиль Ду 15
Вентиль Ду 15
1 штука
Вентиль Ду 20
Вентиль Ду 20
1 штука

Вспомогательное оборудование для работы котла на щепе и опилках 1.25 МВт

Насос К консольный
К 80-65-160
Цена 455 376 тг.
Насос К консольный
К 65-50-125
Цена 336 444 тг.
Насос TD
Насос TD40-36G2 (5.5 кВт)
Цена 1 225 572 тг.
Насос TD
Насос TD80-29G2 (7.5 кВт)
Цена 1 294 896 тг.
Насос CHL
Насос CHL4-40 (0.75 кВт)
Цена 352 344 тг.
Дымосос ДН 6.3
Цена 644 904 тг.
Золоуловитель ЗУ 1.0
Цена 387 960 тг.
Дымосос ДН 8
Цена 1 380 756 тг.

Аналоги котла на щепе и опилках 1.25 МВт

1.25 МВт котел на дровах
Котел на дровах 1.25 МВт
Вид топкиРучная, Колосники, ОУР
Максимальная тепловая мощность, МВт1.25
ТопливоТвердое, Дрова
Отапливаемая площадь, м²от 10400 до 13600
Цена 6 658 920 тг.
На древесных отходах котел 1.25 МВт
Котел на древесных отходах 1.25 МВт
Вид топкиРучная, Подовая
Максимальная тепловая мощность, МВт1.25
ТопливоТвердое, Дрова, Древесные отходы естественной влажности
Отапливаемая площадь, м²от 10400 до 13600
Цена 7 167 720 тг.
Котел 1.25 МВт дрова уголь
Котел 1.25 МВт уголь дрова
Вид топкиРучная, Колосники, ОУР
Максимальная тепловая мощность, МВт1.25
ТопливоТвердое, Уголь, Дрова
Отапливаемая площадь, м²от 10400 до 13600
Цена 5 863 920 тг.
Котел КВр-1.25 К
Котел КВр 1.25 МВт
Вид топкиРучная, Колосники
Максимальная тепловая мощность, МВт1.25
ТопливоТвердое, Уголь
Отапливаемая площадь, м²от 10400 до 13600
Цена 5 628 600 тг.
Котел 1.16 МВт на щепе и опилках
Котел на щепе и опилках 1.16 МВт
Вид топкиВихревая, Автоматическая
Максимальная тепловая мощность, МВт1.16
ТопливоТвердое, Опилки, Щепа
Отапливаемая площадь, м²от 7700 до 11000
Цена 16 351 560 тг.
Котел 1.45 МВт на щепе и опилках
Котел на щепе и опилках 1.45 МВт
Вид топкиВихревая, Автоматическая
Максимальная тепловая мощность, МВт1.45
ТопливоТвердое, Опилки, Щепа
Отапливаемая площадь, м²от 12200 до 16000
Цена 17 127 480 тг.

Сертификат и качество котла на щепе и опилках 1.25 МВт

Сертификат на водогрейные котлы на твердом и жидком топливе
Сертификат на водогрейные котлы на твердом топливе

Собственное производство

Котельный завод производит
  • Паровые котлы от 300 кг до 2.5 тонны пара в час
  • Промышленные водогрейные котлы от 150 КВт до 4 МВт на всех видах топлива
  • Механические топки ТШПМ, шурующая планка и ТЛПХ, ленточное полотно прямого хода
  • Циклоны для очистки воздуха и дымовых газов для производств и промышленных отраслей
  • Транспортеры и системы топливоподачи и шлакоудаления
Подробнее о производстве
Собственное производство
Смотреть видео
с производства